Výzva na účasť
pre Železničná spoločnosť Slovensko, a.s.

Dodanie, montáž, vstupná revízia koľajnicového horizontálneho istiaceho systému (KIS-HIS) do Rušňového depa Prievidza

PRIHLÁŠKA


Vyhlasovateľ,
Železničná spoločnosť Slovensko, a.s., Rožňavská 1, 832 72 Bratislava, Slovensko,
si Vás dovoľujeme pozvať na účasť v obchodnej verejnej súťaži (ďalej len výberové konanie) na predmet zákazky Dodanie, montáž, vstupná revízia koľajnicového horizontálneho istiaceho systému (KIS-HIS) do Rušňového depa Prievidza.

Na účasť v elektronickom výberovom konaní je nutné vyplniť prihlášku. Všeobecný návod na vyplnenie Prihlášky a informácie o tom, ako sa orientovať v elektronickom nákupnom systéme (ďalej len "ENS") zobrazíte po kliknutí na tento odkaz. Prihlášku si môžete zobraziť TU.

Účastníkom bude po vyplnení a odoslaní prihlášky, v ktorej si zvolíte svoje prístupové meno a heslo, zaslaný desaťmiestny prístupový kľúč a až s týmito prístupovými údajmi môžete vstúpiť do ENS na adrese https://slovakrail.proebiz.com.

Pred prihlásením si skontrolujte nastavenie Vášho internetového prehliadača. Aby vám systém fungoval správne, je nutné mať v prehliadači zapnuté "cookies." Viac informácií nájdete v záložke Návod.


Všetky otázky o predmete elektronického výberového konania Vám zodpovie:
Ing. Kassaiová Erika
telefón: + 421 911 063 383
e-mail: Kassaiova.Erika@slovakrail.sk
Výzva na účasť
pre Železničná spoločnosť Slovensko, a.s.

Dodanie, montáž, vstupná revízia koľajnicového horizontálneho istiaceho systému (KIS-HIS) do Rušňového depa Prievidza

PREDMET ZÁKAZKY


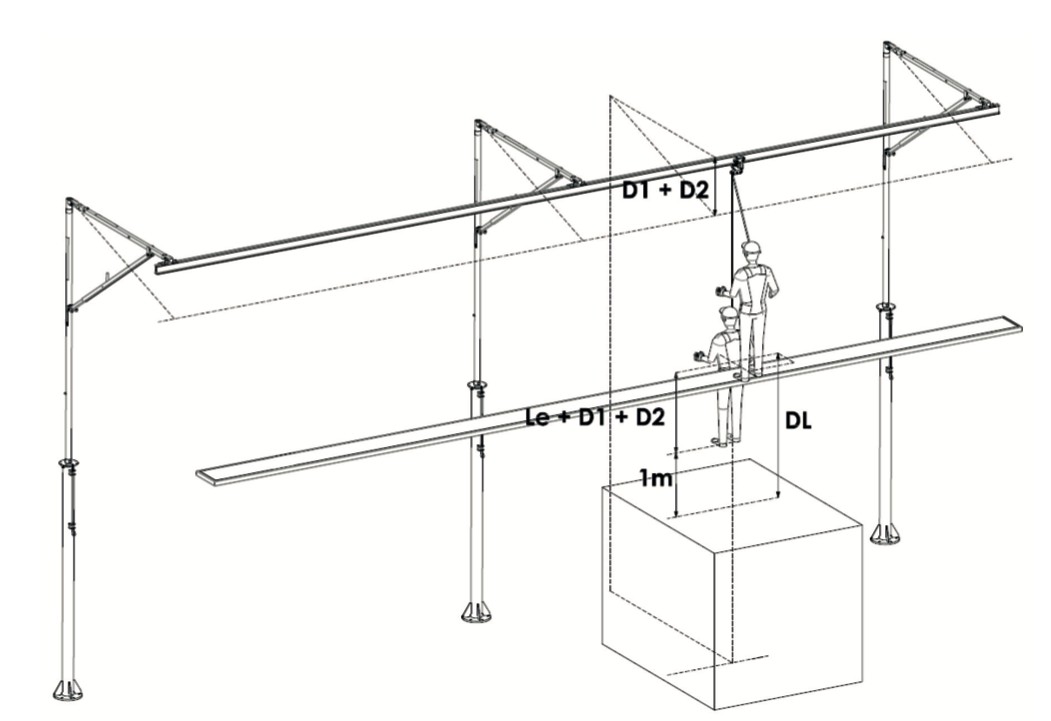
Predmetom zákazky je dodanie, montáž, vstupná revízia 1 ks koľajnicového horizontálneho istiaceho systému (KIS-HIS) dĺžka 18 m na koľaj č. 6 remíza do Rušňového depa Prievidza.

Podmienkou predloženia cenového návrhu bude aj účasť navrhovateľa na povinnej obhliadke miesta inštalácie z dôvodu správnej technickej špecifikácie v Rušňovom depe Prievidza (remíza, koľaj č.6). Účasť navrhovateľa na obhliadke je podmienkou pre vyhodnotenie predloženého návrhu vyhlasovateľom.

Vyhlasovateľ požaduje dodanie koľajnicového istiaceho systému KIS-HIS v súlade s legislatívou a normami, certifikovaného v zmysle platných európskych noriem (EN 795,EN 353-1).

Istiaci systém navrhnutý a testovaný v súlade s normami EN:795:2012 a ANSI/ASSE Z359.18-2017 pozostáva :
• 4 ks Otočné rameno, rozmery 2 500 x 4 300 mm, zostava v tvare obráteného písmena L kombinujúca sa s koľajnicovým systémom a používa sa ako nosný systém, celková výška ramena s kotviacim stĺpom 6,5 m
• 4 ks Stĺp výška 3 m pre osadenie istiaceho koľajnicového systému
• 3 ks Koľajnica 6 m dĺžky, pevná istiaca koľajnica, ktorá sa pripája k systému a na ktorej sa pohybuje posuvný prvok so zaťahovacím prvkom a chráni používateľa
• 2 ks Konzola 4 m
• 2 ks Koncová západka, prvok ktorý zabraňuje vysunutiu posuvného prvku z koľajnice
• 2 ks Bežec na koľajnicu, zaťahovací posuvný prvok na zachytenie pádu na koľajnici
• 2 ks Samonavíjacie kladky s dĺžkou 7 m
• Priebežný element, spojovací materiál a príslušenstvo na montáž koľajnicového istiaceho systému v celkovej dĺžke -18 m.

V cene za dodanie, montáž, vstupná revízia 1 ks koľajnicového HIS (KIS-HIS) na koľaj č. 6 remíza do Rušňového depa Prievidza musia byť zahrnuté náklady za :
• Dodanie koľajnicového systému v dĺžke 18 m na miesto montáže,
• Vykonanie kompletnej montáže istiaceho koľajnicového systému,
• Dodanie dokumentácie od dodávateľa v slovenskom jazyku : Dodanie protokolu – vstupná revízna správa,
• Identifikačné označenie systémov nainštalovanej zostavy,
• Dodanie návodu na použitie,
• Dodanie certifikátu na oprávnenú inštaláciu,
• Dodanie evidenčného listu systému.

Zabezpečenie zaškolenia z obsluhy a údržby vykoná na svoje náklady dodávateľ.

Prílohy Výzvy :
Príloha č. 1 : Všeobecné obchodné podmienky
Príloha č. 2 : Čestné vyhlásenie
Príloha č. 3 : Ilustračný obrázok č. 1
Príloha č. 4 : Ilustračný obrázok č. 2

Predmetom zákazky sú nasledovné položky:

P. Č.NÁZOV POLOŽKYMJMNOŽSTVO
001.Cena za dodanie, montáž, vstupnú revíziu koľajnicového horizontálneho istiaceho systému (KIS-HIS) do Rušňového depa Prievidza v EUR bez DPHJV1.00


Každú vloženú cenu je NUTNÉ POTVRDIŤ STLAČENÍM KLÁVESU ENTER!

Informácie o možnosti vkladania komentárov a príloh,
Administrátor povolil funkciu Komentáre, každý uchádzač má teda možnosť vložiť ku každej položke alebo voliteľnej podmienke dodatočnú informáciu, tzv. komentár. Vloženie vykonáte tak, že kliknete na názov položky alebo voliteľnej podmienky v "eAukčnej sieni". Potom sa otvorí nové okno s detailom položky a v ňom je tlačidlo "Pridať komentár". Po stlačení tlačidla už môžete vpisovať text alebo prikladať prílohy.

Voliteľné podmienky:
NÁZOV VOLITEĽNEJ PODMIENKYROZSAH HODNÔTPOVAHA
Termín dodania (v kalendárnych dňoch)(rozsah hodnôt)
Výzva na účasť
pre Železničná spoločnosť Slovensko, a.s.

Dodanie, montáž, vstupná revízia koľajnicového horizontálneho istiaceho systému (KIS-HIS) do Rušňového depa Prievidza

PODMIENKY VÝBEROVÉHO KONANIA


1. OBCHODNÉ PODMIENKY:
Výsledkom výberového konania bude uzatvorenie obchodu. Pod obchodom sa rozumie vystavenie objednávky.
Súčasťou objednávky budú Všeobecné obchodné podmienky Železničnej spoločnosti Slovensko, a.s. (VOP), ktoré sú uvedené v prílohe.

Po dodaní tovaru musí dodávateľ objednávateľovi odovzdať všetky doklady, dokumentáciu a protokoly definované vyššie uvedenými predpismi a normami.

Vyhlasovateľ vyžaduje záručnú lehotu v trvaní 24 mesiacov, ktorá začína plynúť odo dňa prevzatia celého predmetu objednávky od navrhovateľa vrátane všetkých dokladov, dokumentov a príslušenstva.
Minimálna splatnosť faktúr je 30 dní odo dňa doručenia faktúry ZSSK.
V prípade opakovaného nedodržania termínov dodania predmetných tovarov si vyhlasovateľ vyhradzuje právo dodatočného odmietnutia prijatého návrhu.

Železničná spoločnosť Slovensko, a.s. netoleruje akúkoľvek formu korupcie a zaväzuje sa konať v súlade so schváleným Protikorupčným programom: http://www.slovakrail.sk/sk/protikorupcny-program.html Zmluvná strana sa zaväzuje sa s Protikorupčným programom oboznámiť a postupovať v súlade s ním.

2. PODMIENKY ÚČASTI:
Navrhovateľ preukáže spôsobilosť plnenia predmetu výberového konania predložením naskenovaných dokladov a dokumentov:

písm. a) čestné vyhlásenie (vzor podľa prílohy „Čestné Vyhlásenie), že navrhovateľ:
- všetok tovar, na ktorý predložil svoj návrh, dodá ako originálny tovar požadovaný vyhlasovateľom v predmete zákazky,
- má oprávnenie dodávať tovar, poskytovať službu alebo uskutočňovať stavebné práce, ktoré zodpovedajú predmetu zákazky,
- súhlasí s obchodnými podmienkami uvedenými vo výzve na účasť,
- súhlasí s podmienkami tohto výberového konania, ktoré určil vyhlasovateľ,
- súhlasí s použitím osobných údajov na účel predloženia dokladov, ich vyhodnotenia v rámci tohto výberového konania, ako aj uzatvorenia zmluvného vzťahu, ktorý bude výsledkom tohto výberového konania, v súlade s Nariadením Európskeho parlamentu a Rady (EÚ) č. 2016/679 z 27. apríla 2016 o ochrane fyzických osôb pri spracúvaní osobných údajov a o voľnom pohybe takýchto údajov a rovnako v súlade so zákonom č. 18/2018 Z. z. o ochrane osobných údajov.
- spoločnosť .......... nemá evidované daňové nedoplatky, ktoré sa vymáhajú výkonom rozhodnutia
- berie na vedomie, že v prípade, ak úspešný navrhovateľ, s ktorým vyhlasovateľ uzatvorí obchod opakovane nedodrží lehotu dodania objednaných tovarov alebo bude požadovať zvýšenie vysúťaženej jednotkovej ceny alebo dodá neoriginálny tovar podľa špecifikácie predmetu zákazky, t.z. diel odlišný od špecifikácie vyhlasovateľa; alebo odstúpi od objednávky si vyhlasovateľ vyhradzuje právo odstúpenia od obchodu s možnosťou uzatvoriť obchod s ďalším účastníkom v poradí
Vyhlasovateľ súčasne informuje navrhovateľov, že si vyhradzuje právo jednostranne neumožniť dotknutému navrhovateľovi zúčastniť sa obstarávaní tovaru rovnakého alebo podobného charakteru nasledujúce 2 roky od ukončenia tohto obstarávania a to v prípade ak tento ako úspešný navrhovateľ, z dôvodov na jeho strane, opakovane nedodrží lehotu dodania objednaných tovarov a/alebo bude požadovať zvýšenie vysúťaženej jednotkovej ceny a/alebo dodá neoriginálny tovar podľa špecifikácie predmetu zákazky, t.z. diel odlišný od špecifikácie vyhlasovateľa, a/alebo odstúpi od objednávky. Uvedené nepredstavuje vzdanie sa akéhokoľvek práva zo strany navrhovateľov.
- berie na vedomie, že v prípade úspešnosti a prijatia návrhu, bude s vyhlasovateľom pri plnení predmetu zákazky komunikovať elektronickou formou
- zmluvný partner, v zmysle §2 zákona č. 315/2016 Z. z. o registri partnerov verejného sektora a o zmene a doplnení niektorých zákonov,
• □ je partnerom verejného sektora od ................... (uveďte dátum DD.MM.RRRR)
• □ nie je partnerom verejného sektora.

Dokument musí byť podpísaný navrhovateľom alebo osobou oprávnenou/osobami oprávnenými konať v mene navrhovateľa v súlade s dokladom o oprávnení podnikať alebo splnomocnenou osobou.

písm. b) predloženie platného oprávnenia o odbornej spôsobilosti a certifikácie od výrobcu pre montáž daného koľajnicového istiaceho systému, čo je nevyhnutné pre zachovanie certifikácie (CE) a záruky funkčnosti systému ako osobného ochranného pracovného prostriedku (OOPP) proti pádu.

písm. c) naskenované potvrdenie o účasti na obhliadke.

písm. d) predloženie schematického náčrtu technického riešenia montáže HIS.

Tieto dokumenty a doklady však musia byť platné a musia dokumentovať aktuálny stav.
Ak doklad predkladá navrhovateľ, ktorý má sídlo mimo územia SR resp. je doklad vystavený v inom jazyku ako slovenskom, musí ho predložiť v pôvodnom jazyku a súčasne musí byť preložený do slovenského jazyka, s výnimkou dokladu v českom jazyku.
Od podmienok stanovených vyhlasovateľom sa navrhovateľ nemôže odchýliť.

3. POKYNY K PREDLOŽENIU NÁVRHU:
Navrhovateľ predloží naskenované doklady, ktorými preukazuje splnenie podmienok účasti, t.j. spôsobilosť splniť predmet zákazky.
Zadané ceny musia zahŕňať všetky náklady a výdavky spojené s vykonaním predmetu zákazky a jeho riadnym odovzdaním objednávateľovi.
Cena musí byť zaokrúhlená na dve desatinné miesta.
Cena musí byť stanovená v súlade so zákonom NR SR č. 18/1996 Z. z. o cenách v znení neskorších predpisov a vyhláškou MF SR č. 87/1996 Z. z., ktorou sa vykonáva zákon NR SR č. 18/1996 Z. z. o cenách.
Od podmienok stanovených vyhlasovateľom sa navrhovateľ nemôže odchýliť.
Ak
- navrhovateľ nesplnil podmienky účasti;
- navrhovateľ predložil neplatné doklady; neplatnými dokladmi sú doklady, ktorým uplynula lehota platnosti;
- navrhovateľ poskytol informácie alebo doklady, ktoré sú nepravdivé alebo pozmenené tak, že nezodpovedajú skutočnosti;
- sa navrhovateľ pokúsil neoprávnene ovplyvniť postup obstarávania;
- sa navrhovateľ pokúsil získať dôverné informácie, ktoré by mu poskytli neoprávnenú výhodu;
- na základe dôveryhodných informácií má vyhlasovateľ dôvodné podozrenie, že navrhovateľ uzavrel v danom obstarávaní s iným hospodárskym subjektom dohodu narúšajúcu hospodársku súťaž, ak sa táto podmienka uvedie v oznámení o vyhlásení obstarávania alebo vo výzve;
- pri posudzovaní odbornej spôsobilosti vyhlasovateľ preukázateľne identifikoval protichodné záujmy navrhovateľa, ktoré môžu nepriaznivo ovplyvniť plnenie zákazky;
- navrhovateľ nepredložil po písomnej žiadosti vysvetlenie alebo doplnenie predložených dokladov v určenej lehote, môže byť navrhovateľ z výberového konania vylúčený.
Platným návrhom je návrh, ktorý neobsahuje žiadne obmedzenia alebo výhrady, ktoré sú v rozpore s uvedenými požiadavkami a podmienkami. Ostatné návrhy navrhovateľov budú z výberového konania vylúčené. Navrhovateľ bude upovedomený o vylúčení jeho návrhu s uvedením dôvodu vylúčenia.

4. OSTATNÉ PODMIENKY:
- vyhlasovateľ si vyhradzuje právo odmietnuť všetky predložené ponuky, výberové konanie zrušiť alebo vyhlásiť ďalšie kolo. Vyhlasovateľ je povinný všetkým účastníkom prípadné zmeny okamžite oznámiť.
- ponuky môžu byť konfrontované s porovnávacou cenou vychádzajúcou z vnútornej kalkulácie vyhlasovateľa. Táto porovnávacia ponuka je stanovená pred zahájením výberového konania a je v jej priebehu nemenná.

5. Dokumenty a doklady požadované od navrhovateľa:
a) čestné vyhlásenie
b) predloženie platného oprávnenia o odbornej spôsobilosti a certifikácie od výrobcu pre montáž daného koľajnicového istiaceho systému, čo je nevyhnutné pre zachovanie certifikácie (CE) a záruky funkčnosti systému ako osobného ochranného pracovného prostriedku (OOPP) proti pádu.
c) naskenované potvrdenie o účasti na obhliadke.
d) predloženie schematického náčrtu technického riešenia montáže HIS.
Výzva na účasť
pre Železničná spoločnosť Slovensko, a.s.

Dodanie, montáž, vstupná revízia koľajnicového horizontálneho istiaceho systému (KIS-HIS) do Rušňového depa Prievidza

SPÔSOB VYHODNOTENIA NÁVRHOV


Vyhlasovateľ vyberie najvhodnejší návrh. Pre výber najvhodnejšieho návrhu sa bude vychádzať z predložených návrhov.
Kritériom pre výber najvhodnejšieho návrhu bude Celková cena za predmet zákazky v EUR bez DPH.
V prípade, že navrhovateľ nevyplní položku, nepredloží požadované doklady preukazujúce splnenie podmienok účasti bude z výberového konania vylúčený a nebude zaradený do elektronickej aukcie.
Vyhlasovateľ použije na stanovenie poradia navrhovateľov elektronickú aukciu.
V elektronickej aukcii sa súťaží aukčné kritérium Celková cena za predmet zákazky v EUR bez DPH.
Termín vyhlásenia elektronickej aukcie je orientačný. V prípade zmeny termínu E-aukcie, vyhlasovateľ oznámi navrhovateľom, ktorí splnili podmienky účasti o ich zaradení do II. kola predmetnej zákazky v dostatočnom časovom predstihu najneskôr 1 pracovný deň písomne emailom.

VÁHAPOVAHA

V prípade, že v kritériu s klesajúcou povahou účastník zadá takú ponuku, ktorej výsledkom bude ponuka s nulovou hodnotou, potom táto ponuka nebude systémom prijatá. Účastník bude na túto skutočnosť upozornený.

Navrhovateľ sa nemôže odchýliť od podmienok stanovených vyhlasovateľom.
Vyhlasovateľ si vyhradzuje právo odmietnuť ponuku navrhovateľa s neprimerane vysokou cenou.
Ak navrhovateľ nepredloží niektorý z požadovaných dokladov a dokumentov, ak navrhovateľ nebude spĺňať podmienky výberového konania, na základe požiadavky vyhlasovateľa nedoručí vysvetlenie resp. nedoplní už predložené doklady na základe vyžiadania vyhlasovateľa, ak neodpovie na niektorú z otázok vyhlasovateľa k predloženému návrhu, ak predloží neplatné doklady alebo poskytne nepravdivé alebo skreslené informácie, bude z výberového konania vylúčený.
Vyhlasovateľ si vyhradzuje právo rokovať o predložených návrhoch s navrhovateľmi.
Z predloženého návrhu neplynú pre vyhlasovateľa žiadne záväzky a povinnosti voči navrhovateľovi.
Vyhlasovateľ si vyhradzuje právo vybrať návrh, ktorý mu najlepšie vyhovuje, zmeniť, prípadne výberové konanie zrušiť, neakceptovať návrh v plnom rozsahu, rozdeliť zákazku na čiastkové plnenia, odmietnuť všetky predložené návrhy, pričom nemá povinnosť oznamovať alebo odôvodňovať svoje rozhodnutia, a zmluvný vzťah neuzavrieť alebo odmietnuť všetky návrhy v prípade ich neprijateľnosti a výberové konanie zrušiť.
Úspešnému navrhovateľovi nevzniká nárok na uzatvorenie zmluvného vzťahu.
Vyhlasovateľ má právo zmeniť a doplniť podmienky výberového konania. V takom prípade dodá navrhovateľom všetky potrebné doplňujúce podklady a informácie.
V prípade, že dôjde k ukončeniu zmluvného vzťahu s úspešným navrhovateľom (odstúpenie od zmluvného vzťahu počas plnenia), vyhlasovateľ si vyhradzuje právo osloviť a uzatvoriť zmluvný vzťah s ďalším navrhovateľom umiestneným v poradí podľa výsledku vyhodnotenia predložených návrhov.
Vyhlasovateľ si vyhradzuje právo odmietnuť predložený návrh, ak je navrhovateľ vedený v zozname platiteľov DPH na portáli daňovej sekcie Finančného riaditeľstva SR, u ktorých nastali dôvody na zrušenie registrácie DPH.
Výzva na účasť
pre Železničná spoločnosť Slovensko, a.s.

Dodanie, montáž, vstupná revízia koľajnicového horizontálneho istiaceho systému (KIS-HIS) do Rušňového depa Prievidza

INFORMÁCIA O OBHLIADKE


Vyhlasovateľ v tomto výberovom konaní určil povinnú obhliadku v Rušňovom depe Prievidza.

Účasť navrhovateľa na obhliadke je podmienkou pre vyhodnotenie predloženého návrhu vyhlasovateľom.

Obhliadky sa zúčastní navrhovateľ, štatutárny zástupca navrhovateľa alebo oprávnená splnomocnená osoba za navrhovateľa, ktorá sa na obhliadke preukáže platným splnomocnením podpísaným navrhovateľom alebo osobou oprávnenou konať za navrhovateľa. Predložené splnomocnenie ostáva súčasťou dokumentácie výberového konania, preto ho vyhlasovateľ späť nevydáva. Zúčastnená osoba na obhliadke za navrhovateľa sa preukáže prítomnému zástupcovi vyhlasovateľa občianskym preukazom. Zástupca vyhlasovateľa na obhliadke odovzdá zúčastnenej osobe na obhliadke potvrdenie o účasti na obhliadke.

Vyhlasovateľ stanovil dva termíny fyzickej obhliadky.
Fyzická obhliadka sa uskutoční dňa 02.04.2026 a 08.04.2026 v čase od od 9.00 hod do 12.00 hod.
Miesto zrazu : Rušňové depo Prievidza, Bojnická cesta 2, kancelária vedúceho pracoviska Rušňového depa Prievidza - Ing. Andreja Šimkoviča 1.poschodie.
Kontaktná osoba ZSSK: Mrváň Jozef, telefón: + 421 904 775 280, e-mail: mrvan.jozef@slovakrail.sk

Výzva na účasť
pre Železničná spoločnosť Slovensko, a.s.

Dodanie, montáž, vstupná revízia koľajnicového horizontálneho istiaceho systému (KIS-HIS) do Rušňového depa Prievidza

PRIEBEH


Výberové konanie prebehne formou "ERMMA". Po vyplnení a odoslaní prihlášky do výberového konania mu bude zaslaný desaťmiestny prístupový kľúč.

Zapečatené kolo
V termíne od 23.03.2026 12:40 do 13.04.2026 10:00 bude sprístupnený eAukčný portál pre zadávanie vstupných návrhov a vkladanie dokladov a dokumentov uvedených v článku Podmienky účasti. Každý účastník vidí iba svoj návrh. V tomto kole môžu účastníci svoje návrhy ľubovoľne meniť.

Kontrolné kolo slúži na formálnu kontrolu návrhov zo strany vyhlasovateľa. Počas trvania tohto kola účastníci nemôžu svoje návrhy ľubovolne meniť. V prípade nejasností a potreby objasnenia návrhov, prípadne potreby ich doplnenia, bude navrhovateľ elektronicky požiadaný o vysvetlenie, resp. doplnenie svojho návrhu v lehote určenej vyhlasovateľom.

Aukčné kolo
Do elektronickej aukcie postúpia len navrhovatelia, ktorí splnili všetky podmienky účasti zadané vyhlasovateľom vo vyhlásení.
Vyhlasovateľ navrhovateľov upovedomí o realizovaní elektronickej aukcie pozvánkou, v ktorej budú uvedené všetky informácie o jej priebehu. Počas elektronickej aukcie sa zobrazí všetkým účastníkom najnižšia cenová ponuka (pri každej položke). V priebehu 30 min. majú jednotliví účastníci možnosť svoje ponuky ešte upravovať (iba smerom dole). Nová cenová ponuka položky nemôže byť zhodná s aktuálnou minimálnou cenou položky.

Minimálny krok zníženia cenovej ponuky
Jednotkovú cenu je možné znižovať minimálne o 0.10 %.
(Minimálny krok zníženia jednotkovej ceny je vo vzťahu k aktuálnej cene položky uchádzača.)

Maximálny krok zníženia cenovej ponuky
Jednotkovú cenu je možno znižovať maximálne o 50.00 %.
(Maximálny krok zníženia jednotkovej ceny je vo vzťahu k minimálnej cene danej položky.)

Predlžovanie
Aukčné kolo bude predĺžené o 2 min. pri akejkoľvek zmene ceny v posledných 2 min.

Vyhodnocovacie kolo
Počas trvania tohto kola účastníci nemôžu svoje ponuky meniť.
Lehota viazanosti ponúk je do 30.06.2026 14:00.

Platnosť prístupových kľúčov
Prístupové kľúče expirujú po 30 dňoch od ukončenia výberového konania. Po tejto dobe už nebude možné sa do eAukčnej siene prihlásiť. Pokiaľ máte záujem o vytlačenie Vášho protokolu o účasti v eAukcii a histórie eAukčného prípadu, odporúčame vám si ich vytlačiť ihneď po skončení eAukcie.

Vyhlasovateľ má právo v prípade potreby rozhodnúť o individuálnom predĺžení, respektíve ukončení elektronického výberového konania.

Oznámenie o vyhodnotení elektronického výberového konania bude navrhovateľom odoslané po úplnom vyhodnotení návrhov vyhlasovateľom.
Výzva na účasť
pre Železničná spoločnosť Slovensko, a.s.

Dodanie, montáž, vstupná revízia koľajnicového horizontálneho istiaceho systému (KIS-HIS) do Rušňového depa Prievidza

PRÍLOHY


1. Príloha výzvy na účasť - VOP ZSSK - tovary a služby s účinnosťou od 01042026.pdf

2. Príloha výzvy na účasť - Čestné vyhlásenie.pdf

3. Príloha výzvy na účasť - Ilustračný obr_KIS (HIS) pre RDPD_1.jpg

4. Príloha výzvy na účasť - Ilustračný obr_KIS (HIS) pre RDPD_2.jpg

Výzva na účasť
pre Železničná spoločnosť Slovensko, a.s.

Dodanie, montáž, vstupná revízia koľajnicového horizontálneho istiaceho systému (KIS-HIS) do Rušňového depa Prievidza

NÁVOD


TECHNICKÉ NÁROKY eAUKČNÉHO SW PROEBIZ
Váš počítač musí byť pripojený na Internet. Na bezproblémovú účasť je nutné mať v počítači nainštalovaný jeden z podporovaných webových prehliadačov:

- Microsoft Internet Explorer verze 11.0 a vyššia (http://microsoft.com/ie)
- Mozilla Firefox 13.0 a vyššia (http://firefox.com)
- Google Chrome (http://google.com/chrome)
- Microsoft Edge (https://www.microsoft.com/edge)

Ďalej je nutné mať nainštalovaný Adobe Flash Player (http://get adobe.com/flashplayer), v prehliadači povolené vyskakovacie okná, javascript a zapnuté cookies. Návod ako cookies vo webovom prehliadači povoliť nájdete na http://proebiz.com/sk/podpora.

AKO SA PRIHLÁSITE DO "ERMMA"
Všeobecný návod na vyplnenie Prihlášky a informácie o tom, ako sa orientovať v eAukčnej sieni zobrazíte po kliknutí na tento odkaz.

AKO VSTÚPIŤ DO eAUKČNEJ SIENE
Na vstup do eAukčnej siene použite internetový odkaz (adresu) v časti POZVÁNKA tejto pozvánky. Kliknutím naň sa otvorí internetový prehliadač na adrese eAukčnej siene vyhlasovateľa. Bude potrebné zadať prístupové údaje (meno, heslo – zvolíte si ich sami v prihláške a kľúč – býva doručený e-mailom po vyplnení prihlášky). Pokiaľ tieto údaje zadáte správne (heslo aj kľúč sú skryté), prebehne autentifikácia a otvorí sa eAukčná sieň. Desaťmiestny kľúč môžete kopírovať (napr. pomocou kláves Ctrl+C) z e-mailu a následne vložiť do príslušného políčka (Ctrl+V). Pozor, musíte mať označené iba znaky kľúča (na konci nesmie byť skopírovaná medzera). Do eAukčnej siene sa nedá vstúpiť pred začiatkom eAukcie (začiatkom býva obvykle Vstupné (príp. Kontrolné) kolo).
V prípade akýchkoľvek komplikácií kontaktujte, prosím, administrátora. Kontakt naňho nájdete v časti KONTAKTY.

AKO SA Z eAUKČNEJ SIENE ODHLÁSIŤ
Odhlásenie vykonajte pomocou tlačidla LOGOUT, ktoré sa nachádza v pravom hornom rohu eAukčnej siene. Pokiaľ odhlásenie vykonáte zatvorením okna internetového prehliadača, do eAukčnej siene sa bude možné znovu prihlásiť až o 20 s.

ČO MÔŽETE VO VSTUPNOM KOLE
Vstupné kolo slúži na zadanie vstupných cenových ponúk a voliteľných podmienok. V tomto kole si môžete prehliadnuť a vyskúšať prácu v eAukčnom prostredí. Zvlášť sa sústreďte na čas do konca kola. Tento časový údaj sa mení obvykle v rozmedzí 3 - 5 sekúnd (pokiaľ do ukončenia kola ostáva menej ako 24 hodín). Ak sa tak nedeje, pravdepodobne máte prerušené spojenie a bude potrebné sa do eAukčnej siene znovu prihlásiť, alebo vykonať prenačítanie eAukčnej siene obvykle klávesom F5 alebo ikonkou AKTUALIZOVAŤ vo vašom prehliadači.

V tomto kole je vašou povinnosťou zadať vstupné cenové ponuky. Každú vloženú cenu je NUTNÉ POTVRDIŤ STLAČENÍM KLÁVESU ENTER! Vo Vstupnom kole je možné ceny aj voliteľné podmienky ľubovoľne meniť a upravovať. Uvidíte iba svoje cenové ponuky.

Voliteľné podmienky zadávajte kliknutím na riadok danej podmienky v pravom stĺpci (pokiaľ nie je podmienka vyplnená, je zobrazené v danom políčku slovo „Zmeniť“ alebo je políčko prázdne).
Pokiaľ je názov položky podčiarknutý, kliknutím naňho sa Vám pri položke zobrazí poznámka (obvykle ďalšie upresňujúce informácie, príp. fotka, príloha, apod.).

ČO MÔŽETE V AUKČNOM KOLE
V Aukčnom kole už môžete upravovať svoje cenové ponuky iba smerom nadol (nákupné on-line výberové konanie) alebo naopak iba smerom nahor (predajné on-line výberové konanie).

Vaša nová cenová ponuka položky nemôže byť zhodná s aktuálnou minimálnou (v prípade nákupných výberových konaní), resp. maximálnou cenou (predajné výberové konanie).

V priebehu on-line výberového konania prosím sledujte:
čas do konca kola - jeho zmena potvrdzuje váš kontakt s eAukčným systémom.
V prípade, že sa čas zastaví, stlačte kláves F5 na obnovenie zobrazenia eAukčnej siene.
komunikácia s administrátorom - nástroj na komunikáciu s administrátorom. Tu môžete on-line komunikovať s administrátorom.

Celý priebeh on-line výberového konania od odoslania pozvánok až po ukončenie je zaprotokolovaný do histórie. Všetky vykonané operácie sú zaznamenávané s presnosťou na sekundy. Po ukončení on-line výberového konania vám bude ponúknutá možnosť zobrazenia protokolu histórie a protokolu o vašej účasti.

Aukčné kolo býva obvykle predlžované. Bližšie informácie o predĺžení nájdete v časti PRIEBEH.

Z technickej podstaty fungovania internetových systémov neodporúčame čakať s vkladaním cien v eAukčnej sieni na posledné sekundy prebiehajúceho kola. Takto zadané hodnoty nemusia dôjsť včas k serverovým systémom - napr. z dôvodu spomalenia internetového pripojenia, oneskorenej odozve webového prehliadača, resp. operačného systému. Môže sa teda stať, že ponuky v posledných 5-tich sekundách nemusia byť systémom bezvýhradne prijaté (akceptované).

V PRÍPADE TECHNICKÝCH PROBLÉMOV V PRIEBEHU ON-LINE VÝBEROVÉHO KONANIA SA OBRACAJTE NA ADMINISTRÁTORA. SPOJENIE NAŇHO NÁJDETE V ČASTI KONTAKTY.

PRAVIDLÁ ELEKTRONICKÝCH AUKCIÍ PROEBIZ
- si môžete zobraziť po kliknutí na Pravidlá elektronických tendrov PROEBIZ TENDERBOX